Tarihi hamam restore ediliyor
Hamama ek olarak mülk sahibi tarafından Spor-SPA merkezi inşaa ettirilecek
Bozhane Hamamında başlayan restorasyon ve ilave inşaat çalışması, özel mülkiyet sahibi tarafından yapılan projenin Karabük Kültür ve Tabiat Varlıklarını Koruma Bölge Kurulu tarafından uygun bulunmasıyla Kdz.Ereğli Müze Müdürlüğünün denetiminde yapılmaktadır.
Konuyla ilgili Kdz.Ereğli Belediyesi Plan ve Proje Müdürlüğü’nün açıklaması şu şekildedir;
Zonguldak ili, Kdz. Ereğli ilçesi, Orhanlar Mahallesi, 173 ada 26 parselde yer alan özel mülkiyete ait Bozhane Hamamı;
Yapı Gayrimenkul Eski Eserler ve Anıtlar Yüksek Kurulu Başkanlığı’nın 11.11.1977 tarih ve A860 sayılı kararı ile ‘Taşınmaz Kültür Varlığı’ olarak tescil edilmiştir.
Tescilli hamamın rölöve çizimleri ve restitüsyon projesi Karabük Kültür ve Tabiat Varlıklarını Koruma Bölge Kurulu’nun 07.10.2009 tarih ve 1445 sayılı ile uygun bulunarak onaylanmıştır.
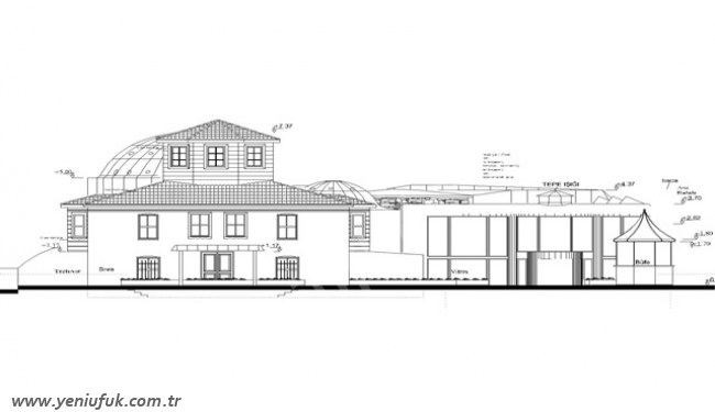
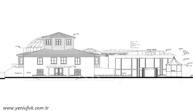
Yapıya ait ilave Spor ve Spa Merkezi ile mevcut hamamın restorasyonunu içeren proje Karabük Kültür Varlıkların Koruma Bölge Kurulu’nun 17.08.2018 tarih ve 4579 sayılı kararı ile uygun bulunarak onaylanmıştır.
Kurul kararına istinaden Belediyemizce 18.02.2019 tarih ve 44 Sayı ile restorasyon ve ilave inşaat ruhsatı verilmiştir. Proje görselleri EK’te gönderilmiştir.
Söz konusu inşaata 11.04.2019 tarihinde Belediyemizin bilgisi ve Müze Müdürlüğü denetiminde ilave kısmın hafriyatı ile başlanmıştır.
Haber :
ETİKETLER : Yazdır























